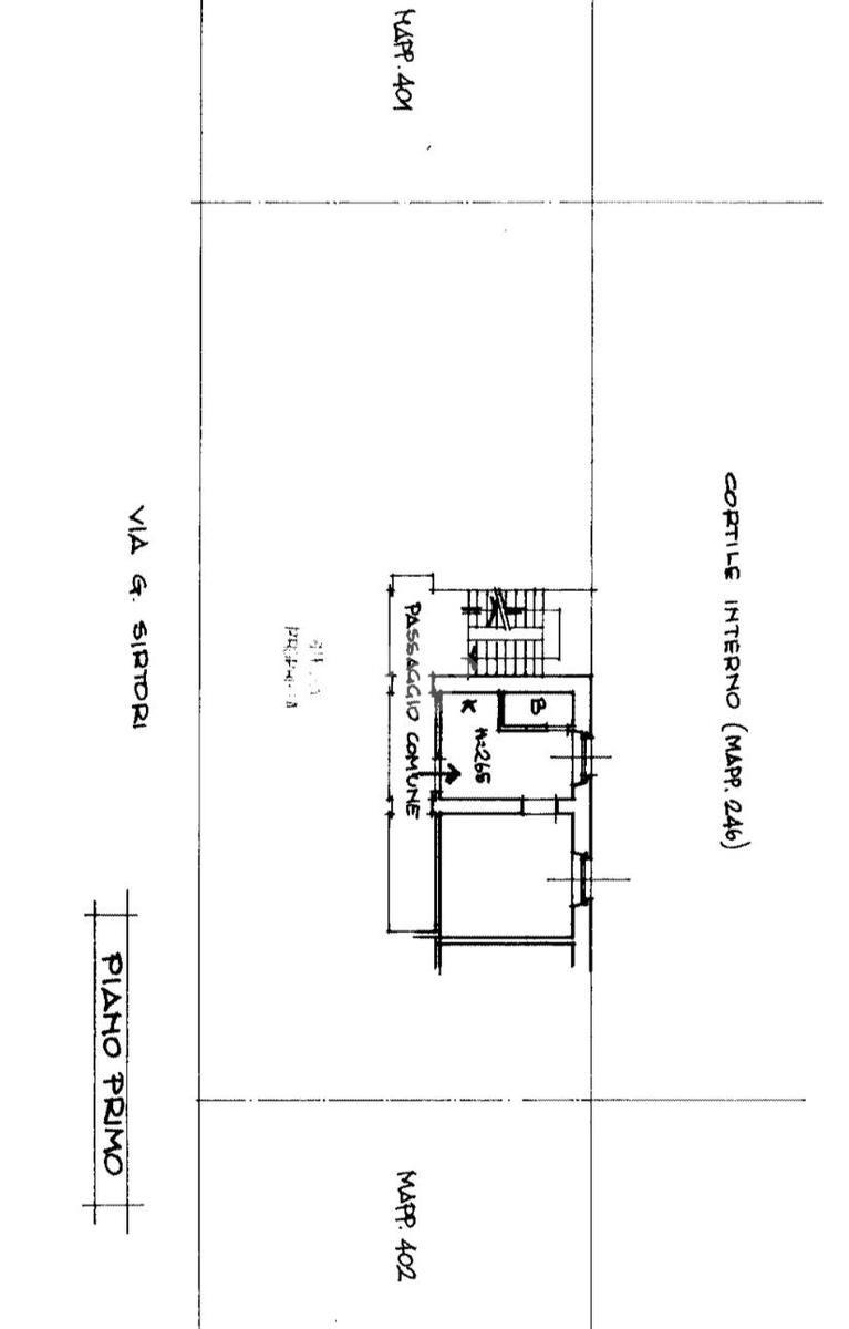
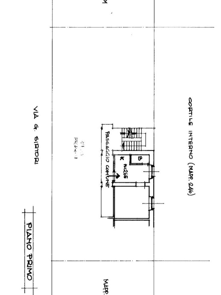
Bilocale in vendita

Milano, Via Sirtori - Porta Venezia
€ 365.000
2 locali 2 locali
45 Mq 45 Mq
1 bagno 1 bagno

Bilocale in vendita

Milano, Via Sirtori - Porta Venezia

Descrizione annuncio

Bilocale in vendita nel cuore di Porta Venezia.

Nel cuore pulsante di Porta Venezia, una delle zone più vivaci e richieste di Milano, Studio Piave propone in vendita un bilocale situato al primo piano di uno stabile d’epoca dei primi del ’900 e servito da ascensore.

L’appartamento, recentemente ristrutturato, è in ottime condizioni e viene venduto completamente arredato, rappresentando una soluzione ideale pronta per essere abitata sin da subito.

L’ingresso introduce in un ambiente accogliente e ben distribuito, dove la zona giorno si apre su un soggiorno con angolo cottura a vista, perfettamente integrato e funzionale.

La camera da letto matrimoniale, silenziosa e luminosa, offre uno spazio confortevole e rilassante, mentre il bagno è curato nei dettagli.

L’immobile è inoltre dotato di impianto di aria condizionata, che garantisce un elevato livello di comfort in ogni stagione dell’anno.

Libero da subito.

Nelle immediate vicinanze troviamo tutti i servizi di prima necessità, fermata della metropolitana linea M1 Porta Venezia a circa 5 minuti a piedi, fermata della metropolitana linea M4 Tricolore a circa 3 muniti di distanza, tram 9, 19 e 5 e passante ferroviario.

Mostra tutto

Nelle vicinanze

Trasporto pubblico Trasporto pubblico
Porta Venezia
Porta Venezia
270 m
Palestro
Palestro
550 m
stazione di Milano Dateo
stazione di Milano Dateo
960 m
Milano Centrale
Milano Centrale
1,5 Km
Viale Piave
Viale Piave
150 m
Ricariche auto elettriche Ricariche auto elettriche
A2A Isola Digitale Porta Venezia
290 m
MACHIAVELLI PARKING
710 m
A2A Corso Monforte
750 m
A2A Corso Indipendenza
830 m
Hotel Baviera Mokinba
830 m
Scuole Scuole
Scuola Europa
250 m
Istituto comprensivo Pisacane e Poerio
440 m
Istituto comprensivo Antonio Stoppani
480 m
Liceo Scientifico Alessandro Volta
720 m
Scuola media statale Gian Battista Tiepolo
760 m
Farmacia Farmacia
Farmacia Diana
120 m
Farmacia Malpighi
180 m
Farmacia Formaggia
250 m
Farmacia
280 m
Farmacia Venezia
420 m
Ospedali Ospedali
Centro Medico Milano Tree Of Life S.r.l.
730 m
Ospedale Macedonio Melloni
1,2 Km
Fatebenefratelli
1,4 Km
Ospedali
1,8 Km
Istituto Nazionale dei Tumori
1,9 Km
Supermercati Supermercati
Esselunga
70 m
NaturaSì
140 m
U2
270 m
Pam
290 m
Carrefour Market
430 m
Negozi Negozi
Martino Midali
140 m
Leopoldo
170 m
Eivissa
230 m
House of Cashmere
230 m
JDC Milano
270 m
Bar Bar
Sheraton Diana Majestic
90 m
Picchio
130 m
Eppol Liquors $ Kitchen
180 m
Pesa Pubblica
190 m
Turne
210 m
Ristoranti Ristoranti
Neta
120 m
The Botanical Club
150 m
Warsa
150 m
Adulis
150 m
Turkish Kebap Pizzeria
160 m
Mostra tutto

Caratteristiche

Rif.:
61126350
Piano:
1 di 5 con ascensore (Piano basso)
Camere da letto:
1
Arredamento:
Completo
Condizionamento:
Autonomo
Ascensore:
Mostra tutto
Prezzo Prezzo
€ 365.000
Rata mutuo Rata mutuo
€ 1.672 / mese
Spese annue Spese annue
€ 1.800
Proponi il tuo prezzoProponi il tuo prezzo

Classe Energetica

G
G
G
G
G
G
G
G
G
EP globale rinnovabile:
175.00 kW h/m² anno
Anno di costruzione:
1920
Riscaldamento:
Autonomo
Tipo impianto:
A radiatori
Tipo alimentazione:
Metano

Ti interessa visionare l'immobile?

Fissa un appuntamento  Fissa un appuntamento

Richiedi informazioni

* Questi campi sono obbligatori

Calcola il tuo mutuo

Semplice e senza impegno
Anticipo

( % )
Mutuo

( % )

pochi semplici passi

inserisci i tuoi dati
Questionario completato
Grazie per aver richiesto un appuntamento senza impegno con un nostro Consulente del Credito e Assicurativo.

Hai inserito correttamente tutti i dati necessari e a breve riceverai una e-mail con un link da convalidare per inviare i tuoi dati.
Affiliato
Studio Piave Srl
Viale Piave, 7 20129 Milano (MI)

Il nostro staff


  • Alessandro Pini
    Affiliato

  • Emanuela Ana Caprar
    Collaboratrice
Viale Piave, 7 20129 Milano (MI)
Zona: Centro Quadrilatero - C.so Venezia - Piave
Mostra su mappa
Orari: da lunedì a venerdì 09.00/12.30 - 14.30/20.00 sabato 09.00/13.00
Affiliato
Studio Piave Srl
Viale Piave, 7 20129 Milano (MI)

2025 Tecnocasa Franchising S.p.A. - P. IVA 08365160152 - Via Monte Bianco 60/A 20089 Rozzano (MI). Ogni agenzia ha un proprio titolare ed è autonoma. Privacy policy | Policy utilizzo | Cookie policy