Trilocale in vendita

Milano, Via Gioacchino Rossini - Porta Venezia
€ 790.000
3 locali 3 locali
90 Mq 90 Mq
1 bagno 1 bagno

Trilocale in vendita

Milano, Via Gioacchino Rossini - Porta Venezia

Descrizione annuncio

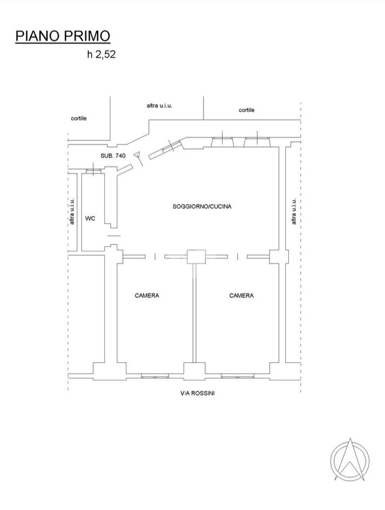
In vendita un affascinante spazio storico di 90 mq nel cuore di Milano, nella celebre Casa degli Artisti.

Studio Piave propone in vendita un esclusivo locale di 90 mq da ristrutturare, situato all’interno della rinomata “Casa degli Artisti” o “Casa Ortelli”, nel cuore di Milano.

Questo affascinante edificio di metà Ottocento rappresenta un raro esempio di architettura eclettica milanese ed è intriso di storia e identità culturale.

L’immobile si trova all’interno di un complesso storico di rara bellezza, esempio significativo di residenza eclettica ottocentesca, articolato attorno a due cortili rettangolari con affaccio su un silenzioso giardino interno.

È situato al primo piano, servito da ascensore e dotato di servizio di portineria attivo per l’intera giornata, a garanzia di comfort e sicurezza.

La facciata su strada, progettata come due case gemelle autonome, affascina con i suoi balconi in ferro battuto, sorretti da mensole in beola, lesene, fasce marcapiano e un importante cornicione aggettante, che conferiscono un’eleganza sobria e d’altri tempi.

Ma è al piano terra che l’edificio rivela tutta la sua unicità, nove arcate maestose si susseguono ospitando botteghe e ammezzati, testimoniando la vocazione artistica e artigianale del luogo.

Cuore pulsante del complesso è la prima corte, uno spazio senza tempo in cui convivono 12 colonne monolitiche in marmo di Candoglia, 14 colonne bramantesche a candelabro e 4 colonnine cilindriche, tutte diverse nei capitelli, che sorreggono eleganti archi in una composizione architettonica di straordinario valore storico.

L'immobile, attualmente vuoto e da ristrutturare, rappresenta un'opportunità rara per chi desidera vivere o investire in un contesto ricco di fascino e memoria storica, a pochi passi da tutto ciò che Milano ha da offrire.

Grazie alla sua posizione e al contesto storico di forte impatto, l’immobile è ideale come: studio professionale o atelier d’artista, showroom di design o moda, abitazione privata di charme o investimento con finalità ricettive (B&B di lusso o casa vacanze).

Un'opportunità rara per chi desidera vivere o investire in uno spazio che è parte della storia di Milano, in un contesto esclusivo e senza tempo.

Mostra tutto

Nelle vicinanze

Trasporto pubblico Trasporto pubblico
Palestro
Palestro
320 m
Porta Venezia
Porta Venezia
650 m
stazione di Milano Dateo
stazione di Milano Dateo
990 m
stazione di Milano Porta Vittoria
stazione di Milano Porta Vittoria
1,9 Km
Piazza Tricolore
Piazza Tricolore
220 m
Ricariche auto elettriche Ricariche auto elettriche
A2A Corso Monforte
270 m
A2A Isola Digitale Porta Venezia
580 m
A2A Isola Digitale Cinque Giornate
770 m
A2A Corso Indipendenza
850 m
A2A Palazzo di Giustizia
900 m
Scuole Scuole
Scuola Europa
320 m
TJ Taylor Formazione Linguistica
400 m
Scuole
440 m
Istituto comprensivo Pisacane e Poerio
450 m
Conservatorio di Musica "Giuseppe Verdi"
530 m
Farmacia Farmacia
Farmacia
220 m
Tadini
240 m
Farmacie di Turno
440 m
Concordia
450 m
Farmacia San Babila
470 m
Ospedali Ospedali
Centro Medico Milano Tree Of Life S.r.l.
250 m
Ospedale Macedonio Melloni
1,2 Km
Ospedali
1,3 Km
Policlinico di Milano
1,4 Km
Fatebenefratelli
1,5 Km
Supermercati Supermercati
Bio c’ Bon
190 m
Unes
290 m
U2
310 m
Esselunga
420 m
Simply Market
470 m
Negozi Negozi
Maya e Lino
70 m
Bisbigli
330 m
Gianni Campagna
340 m
Martino Midali
340 m
VolZa
340 m
Bar Bar
Nottingham Forest
160 m
Sheraton Diana Majestic
500 m
Picchio
550 m
Bar Bianco
600 m
Lab Milano
620 m
Ristoranti Ristoranti
God Save The Food
210 m
This is Pasta!
320 m
Gong
340 m
Miyabi
410 m
La Cantina di Manuela
420 m
Mostra tutto

Caratteristiche

Rif.:
61125996
Piano:
1 di 3 con ascensore (Piano basso)
Camere da letto:
1
Arredamento:
Assente
Condizionamento:
Assente
Ascensore:
Mostra tutto
Prezzo Prezzo
€ 790.000
Rata mutuo Rata mutuo
€ 3.619 / mese
Spese annue Spese annue
€ 1.800
Proponi il tuo prezzoProponi il tuo prezzo

Classe Energetica

F
F
F
F
F
F
F
F
F
EP globale rinnovabile:
118.40 kW h/m² anno
EP invernale del fabbricato:
EP estiva del fabbricato:
Anno di costruzione:
1870
Riscaldamento:
Centralizzato
Tipo impianto:
A radiatori
Tipo alimentazione:
Metano

Ti interessa visionare l'immobile?

Fissa un appuntamento  Fissa un appuntamento

Richiedi informazioni

* Questi campi sono obbligatori

Calcola il tuo mutuo

Semplice e senza impegno
Anticipo

( % )
Mutuo

( % )

pochi semplici passi

inserisci i tuoi dati
Questionario completato
Grazie per aver richiesto un appuntamento senza impegno con un nostro Consulente del Credito e Assicurativo.

Hai inserito correttamente tutti i dati necessari e a breve riceverai una e-mail con un link da convalidare per inviare i tuoi dati.
Affiliato
Studio Piave Srl
Viale Piave, 7 20129 Milano (MI)

Il nostro staff


  • Alessandro Pini
    Affiliato

  • Emanuela Ana Caprar
    Collaboratrice
Viale Piave, 7 20129 Milano (MI)
Zona: Centro Quadrilatero - C.so Venezia - Piave
Mostra su mappa
Orari: da lunedì a venerdì 09.00/12.30 - 14.30/20.00 sabato 09.00/13.00
Affiliato
Studio Piave Srl
Viale Piave, 7 20129 Milano (MI)

2025 Tecnocasa Franchising S.p.A. - P. IVA 08365160152 - Via Monte Bianco 60/A 20089 Rozzano (MI). Ogni agenzia ha un proprio titolare ed è autonoma. Privacy policy | Policy utilizzo | Cookie policy